PALANI RESIDENCE
Gallery
Description by Architect:
This contemporary elevation is defined by clean volumes and a striking vertical screen that acts as both a shading device and an artistic focal element. The custom tree-inspired feature panel adds character and identity to the façade, while the recessed balcony creates depth and visual balance. A restrained material palette and subtle detailing ensure the structure blends harmoniously with its natural surroundings.
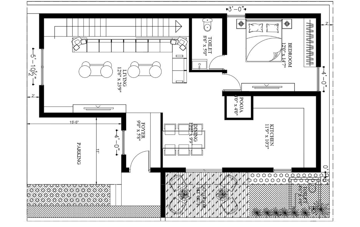
ground floor
This thoughtfully planned residence offers a seamless flow from the foyer into a spacious living and dining area, creating a welcoming and functional core. The layout includes a well-proportioned bedroom, kitchen with a dedicated pooja room, and strategically placed utilities to ensure privacy and efficiency. An outdoor sit-out and integrated parking complete the design, blending comfort, practicality, and everyday living convenience.
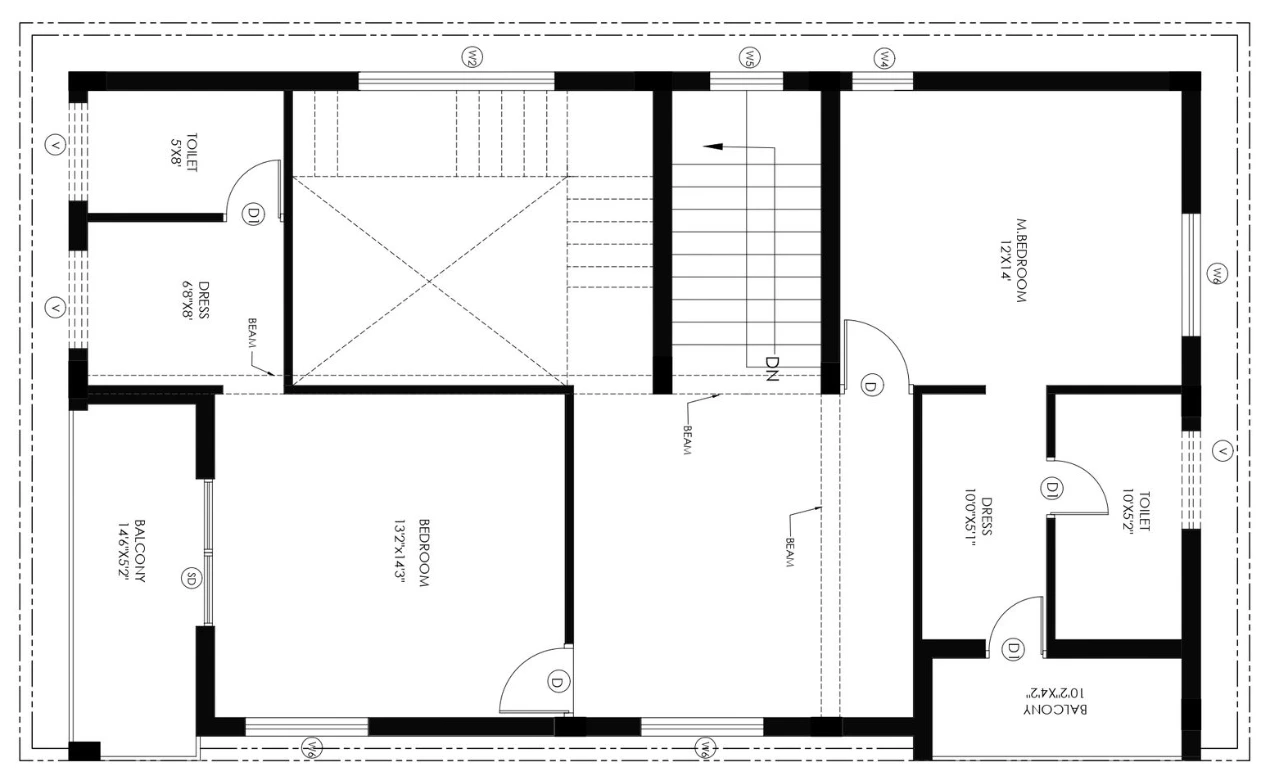
first floor
Functional spaces :
This living space is designed for comfort and social interaction, featuring a spacious sectional seating area within an open and airy layout. The double-height ceiling and large curtains enhance natural light and create a sense of openness. Integrated storage and display units beneath the staircase maximize functionality while maintaining a clean, modern aesthetic.
This kitchen and dining space is designed for efficient functionality and seamless interaction between cooking and dining areas. The modular kitchen provides organized storage and a practical work triangle, ensuring convenience during meal preparation. A warm and elegant dining area, defined by wooden elements and soft lighting, creates a comfortable space for family meals and gatherings.
Construction :





Interior :





