SYED RESIDENCE
Gallery
This residence is conceived as a contemporary architectural statement where soft arches and clean linear forms create a balanced, sculptural façade. Natural light, curated openings, and warm material tones are thoughtfully integrated to enhance spatial flow and indoor–outdoor connection. The design reflects a modern lifestyle while maintaining timeless elegance, functionality, and contextual harmony with its surroundings.
This thoughtfully planned residence centers around a sunken living space that becomes the heart of the home, seamlessly connecting the dining, kitchen, and circulation areas. The layout balances privacy and openness with a well-defined master suite featuring a dressing area and balcony, a guest bedroom, and clear separation of service zones.
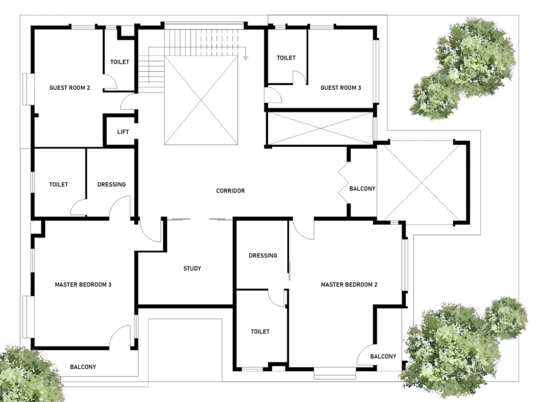
This upper floor is planned as a private family zone, organized around a central corridor with visual connection to the double-height living below. It accommodates multiple bedrooms, including two master suites and guest rooms, each supported with dedicated toilets, dressing areas, and balconies for comfort and privacy.
The roof level is designed as a serene and functional extension of the home, integrating open terraces with built spaces. A dedicated prayer room and lift access ensure convenience while maintaining privacy and tranquility.
Functional spaces :
This sunken living space is designed as a dramatic yet inviting focal point, defined by layered levels, warm textures, and elegant lighting. The feature wall and ceiling details add depth and visual interest while maintaining a refined, contemporary aesthetic.
This double-height living space makes a bold architectural statement with its sculptural feature wall, layered textures, and dramatic vertical lighting. Seamlessly connected to the staircase and surrounding spaces, it becomes a striking visual anchor and social heart of the home.
Construction:






Interior:





