AADHYUM DESIGN STUDIO
Gallery
Description provided by the architects
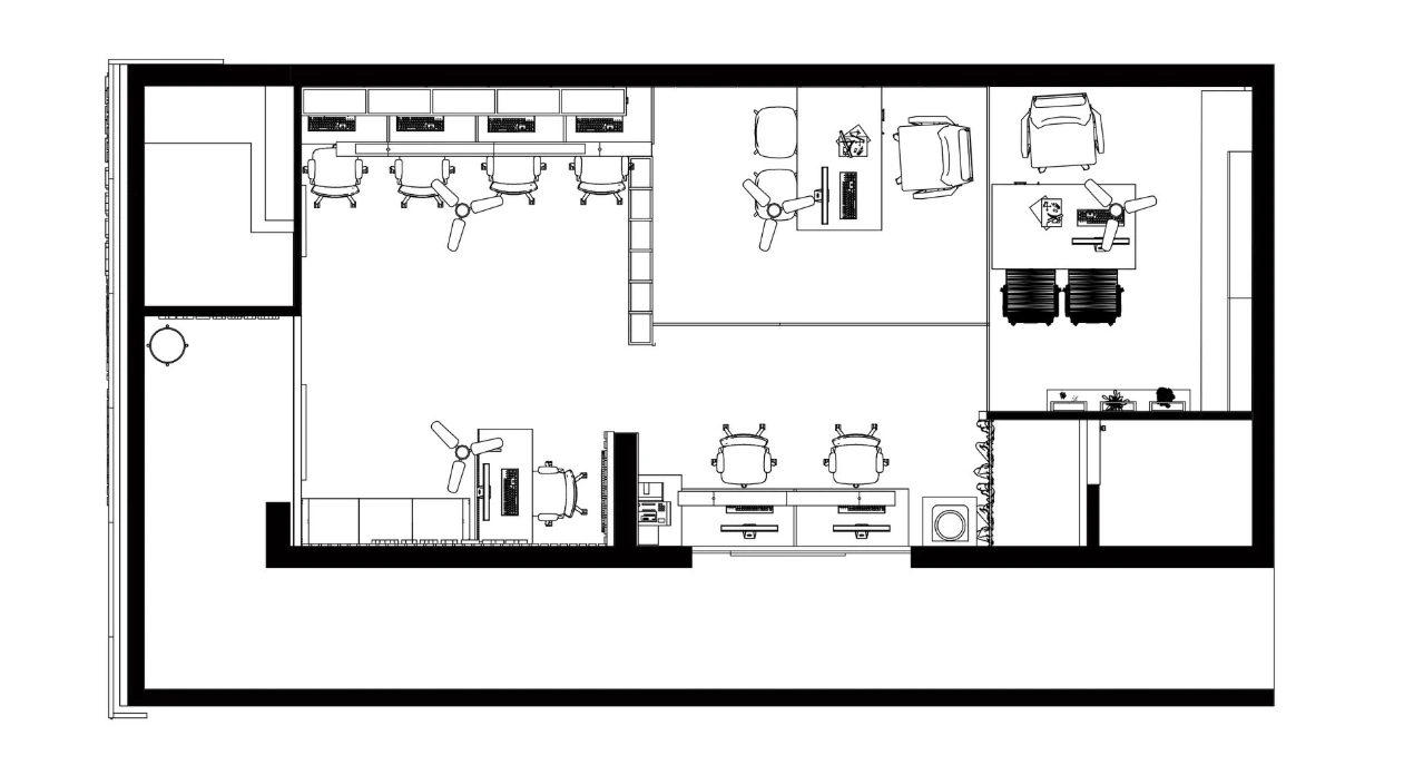
Our layout prioritizes user flow and circulation, thoughtfully integrating key functional
spaces including the MD’s cabin, a 6-person conference area, pantry, toilet, reception with accounts
section, a welcoming waiting area, and a dedicated model-making space to support creative and
administrative needs.
Functional space :
Office space is designed to provide a quiet and focused environment for work and meetings. Glass partitions create visual openness while maintaining privacy and sound control. Minimal furnishings and organized workstations ensure a clean, efficient, and professional workspace.
Workspace is designed to support productivity and collaboration in a calm, organized environment. Dedicated workstations provide comfortable seating and efficient desk space for focused tasks. Integrated shelving and storage units keep books and materials neatly arranged while enhancing the professional ambiance.
Elevation :
The façade of Aadhyum Group showcases a modern architectural expression with a striking perforated metal screen that creates a unique geometric pattern across the elevation. The contemporary design enhances visual appeal while allowing natural light and ventilation, giving the building a dynamic and elegant identity.
Section :
Open workstations are positioned at the center to encourage teamwork, while glass-partitioned cabins provide privacy without blocking visual connectivity and natural light. The design balances functionality and aesthetics with clean interiors, organized storage, and contemporary finishes to create an efficient and professional workspace.
Interior :




